티스토리 뷰
오늘도 부동산 사이트 구경하다가 엔화 1억엔 언더로 도쿄에서 살 수 있는 단독주택들을 찾아 봤어.
7000만엔대 ~ 9000만엔대 중심으로 찾았고, 이정도 가격선이 되니 확실히 중산층 이상인 사람들이 선호하는 지역이 대부분이더라. 면적도 평균적인 일본 집들보단 넓은 편





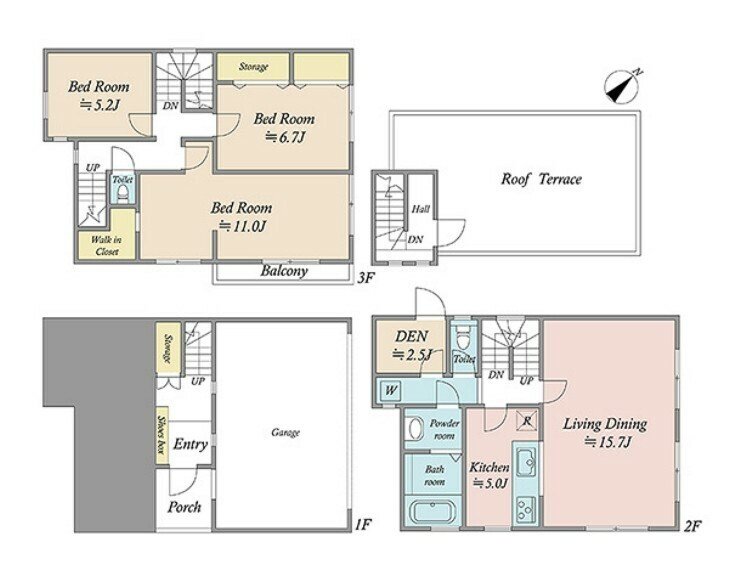
1.오기쿠보
가격 - 9,980만엔
위치 - 도쿄도 스기나미구
교통 - 마루노우치선 오기쿠보역 도보 18분
구조 - 3LDK + S
토지 면적 - 162.77m 2
건물 면적 - 180.76m 2
준공 년도 - 1990년 5월 (준공 30년)
오기쿠보역에서 도보로 조금 떨어져 있는 집.
축년은 오래 되었지만, 전체적으로 리모델링이 진행되고 있어서 오히려 더 깔끔해졌어.
오기쿠보역도 항상 인기 많은 곳이고, 신주쿠까지는 10분 정도 소요.
역 주변에 쇼핑할 곳도 많고 편한데, 집에서 역까지 걸어서 18분은 좀 단점인듯..





2. 사쿠라죠스이
가격 - 9,990만엔
위치 - 도쿄도 세타가야구
교통 - 게이오선 사쿠라죠스이역 도보 5분
구조 - 4LDK
토지 면적- 97.99m 2
건물 면적 - 148.05m 2
준공 년도 - 2015년 10월 (준공 5년)
세타가야의 사쿠라죠스이에 있는 집.
세타가야구가 대부분 그렇듯, 이 역 근처도 조용조용한 주택가야.
치안도 좋고 살기엔 좋지만, 쇼핑할만한 곳이 슈퍼나 편의점 정도가 다이기 때문에 어찌 보면 단점일 수도 있어.
세타가야 구 내에서는 상대적으로 임대료가 약간 저렴한 편.
신주쿠역 까지 전철로 12분 소요.





3.오쿠사와
가격 - 9,980만엔
위치 - 도쿄도 세타가야구
교통 - 도큐 메구로선 오쿠자와역 도보 7분
구조 - 2SLDK
토지 면적 - 110.08m 2
건물 면적 - 109.42m 2
준공 년도 - 2014년 11월 (준공 6년)
세타가야구 도쿄 끝자락에 있는 오쿠자와역 근처의 집.
역시 여기도 역 근처는 조용조용 하고 살짝 낙후되어 있다는 느낌도 들어.
나쁘다는건 아니고, 오히려 고급 주택지에 가까운 곳이야.
가장 큰 장점은 지유가오카까지 10분 정도면 걸어갈 수 있는 입지. 치안은 말 할 필요도 없고.
도심 액세스는 신주쿠까지 20분 소요. 급행이 정차하지 않는건 단점.





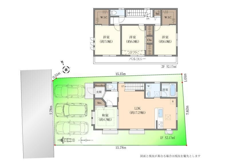
4. 시모오치아이
가격 - 9,480만엔
위치 - 도쿄도 신주쿠구
교통 - 세이부 신주쿠선 시모오치아이역 도보 5분
구조 - 3LDK
토지 면적 - 94.66m 2
건물 면적 - 148.63m 2
준공 년도 - 2004년 4월 (준공 16년)
신주쿠구 내에선 드물게 한적한 분위기의 동네.
다카다노바바까지는 1정거장, 신주쿠까진 2정거장이니 도심 액세스는 정말 좋은 편.





5. 다카이도
가격 - 8,380만엔
위치 - 도쿄도 스기나미구
교통 - 게이오 이노카시라 선 다카이도역 도보 12분
구조 - 4LDK
토지 면적 - 148.79m 2
건물 면적 - 115.68m 2
준공 년도 - 2006년 8월 (준공 14년)
스기나미구의 다카이도역 근처의 집. 오늘 찾은 집들은 대부분 이런 조용한 주택가라 딱히 설명하고 조사할게 없네.
그만큼 치안도 좋고 살기 좋다는 의미라고 생각하면 될 것 같아.
역시 역주변 상권은 빈약해서 거의 구색만 맞춰져 있는 편인게 단점..
전철로 키치죠지까지 10분, 시부야나 신주쿠까지 약 23분 소요.





6. 하치만야마
가격 - 7,490만엔
위치 - 도쿄도 세타가야구
교통 - 게이오선 하치만야마역 도보 14분
구조 - 4LDK
토지 면적 - 130.91m 2
건물 면적 - 104.34m 2
준공 년도 - 2005년 2월 (준공 16년)
위에 소개했던 동네들과 비슷한 동네. 조용하고..살기 좋고..
축년이 15년이 넘었지만 막 느껴질 정도는 아니고 나름 잘 관리된 집인것 같아.
역 주변 상권도 나쁘지 않아서 그럭저럭 불편함 없이 살 수 있는 정도야.
단점은 역까지 걸어서 조금 멀다는 것. 하치만야마 역에서 신주쿠역까진 18분 소요.





7. 나카노사카우에
가격 - 6,980 만엔
위치 - 도쿄도 나카노구
교통 - 도쿄메트로 마루노우치선 나카노사카우에역 도보 8분
구조 - 3LDK
토지 면적 - 87.12m 2
건물 면적 - 98.54m 2
준공 년도 - 2008년 12월 (준공 12년)
사진에 보이는 4채의 집 중에서 왼쪽 두번쨰(안쪽) 집.
신주쿠까지는 3분 걸리고, 오피스 빌딩도 많은 동네이지만, 한 블럭만 안쪽으로 들어가면 주택가인 동네야.
니시신주쿠나 도쿄도청 앞 까지 자전거로도 금방이기 때문에 도심 액세스 면에서는 최고인 곳.
집이 안쪽으로 파고 들어가 있는게 좀 답답해 보이긴 하는데, 신주쿠 빌딩이 보이는 뷰는 정말 좋다..
'생활' 카테고리의 다른 글
| 2026년 달력 (0) | 2025.11.10 |
|---|---|
| 극한직업 부탄가스 공장 (0) | 2020.11.05 |
| 단 5일만에 21년산 위스키와 동일한 맛을! 비스포큰 스피리츠 BESPOKEN SPIRITS (0) | 2020.10.25 |
| 리모컨 고장 확인 초간단 대처법 (0) | 2020.07.17 |
| 머리 예쁘게 묶기 (0) | 2020.06.06 |
- Total
- Today
- Yesterday
- 문제해결
- 영국
- 가입 필요없는 토렌트 사이트
- torrent 추천
- 광복절
- 미국
- 전쟁
- 8.15
- 주식
- 중국
- 무삭제
- 과학
- 코로나
- 815
- 토렌트 사이트
- 대만
- 한국
- 문제 해결
- 토렌트
- 무가입 토렌트
- 타이완
- torrent 사이트
- torrent
- 일본
- 러시아
- 북한
- 호주
- 프랑스
- 토렌트 추천
- 이스라엘
| 일 | 월 | 화 | 수 | 목 | 금 | 토 |
|---|---|---|---|---|---|---|
| 1 | ||||||
| 2 | 3 | 4 | 5 | 6 | 7 | 8 |
| 9 | 10 | 11 | 12 | 13 | 14 | 15 |
| 16 | 17 | 18 | 19 | 20 | 21 | 22 |
| 23 | 24 | 25 | 26 | 27 | 28 | 29 |
| 30 |